お知らせ
INFO
「ピタットハウス豊田駅前店」〜駅徒歩3分〜日野市大字日野新築 東京都日野市日野|5,680万円の新築一戸建て|株式会社みんなのおうち
| 価格 | 5,680万円 ![]() |
||||
|---|---|---|---|---|---|
| 所在地 | 東京都日野市日野
この地域周辺の物件を見る |
土地面積 | 136.72m² (41.35坪) | 建物面積 | 98.53u |
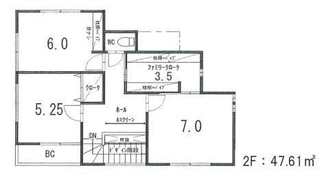
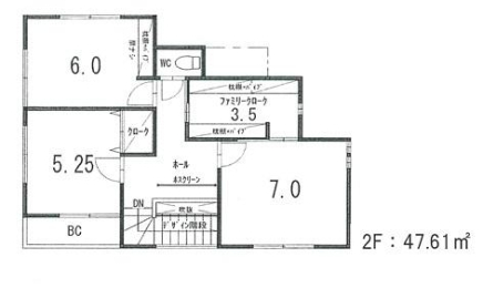
| 築年月 | 2026年3月築 | 間取り | 3LDK (-) | ||
| 交通 |
多摩都市モノレール 甲州街道 徒歩3分
JR中央線 日野 徒歩22分 多摩都市モノレール 柴崎体育館 徒歩21分 |
||||
| 特徴 |
|
|---|---|
| セールスコメント | - |
| 採光面 | - | 構造/階数 | 木造/地上2階建 |
|---|---|---|---|
| 建ぺい率 | 50(%) | 容積率 | 100(%) |
| 駐車場 | 有 | 現況/引渡し | 建築中/相談 |
| 土地権利 | 所有権 | 私道負担面積 | - |
| 接道状況 | 接道: 東南 5m 公道 道路幅: 5m | 用途地域 |
第一種低層住居専用地域
|
| セットバック | なし | 法令上の制限 | - |
| 地目 | 宅地 | 地勢 | |
| 建築確認番号 | TKK確済25-164号 | 都市計画 | 市街化区域 |
| 取引態様 | 媒介 | ||
| 情報更新日 | 2026年01月25日 | 次回更新日 | 2026年02月08日 |
| 小学校区 | 日野市立日野第四小学校 (東京都日野市) この学区の他の物件を見る |
中学校区 | 日野第一中学校 (東京都日野市) この学区の他の物件を見る |
|---|
| 価格 | 万円 | ||
|---|---|---|---|
| 年利率 | % |
||
| ボーナス払い | 返済年数 | ||
| 頭金 | 直接入力する | 万円 | |

毎月のご返済額 |
ボーナス(×年2回) |
物件価格5,680万円 |
![]() |
![]() |
日野市日野
4490万円〜5680万円 |
-