お知らせ
INFO
日野市東豊田 新築戸建 ★豊田駅・南東角地・制震ダンパー・浴室TV・食洗機★ 東京都日野市東豊田1丁目|3,780万円の新築一戸建て|株式会社みんなのおうち
| 価格 | 3,780万円 ![]() |
||||
|---|---|---|---|---|---|
| 所在地 | 東京都日野市東豊田1丁目
この地域周辺の物件を見る |
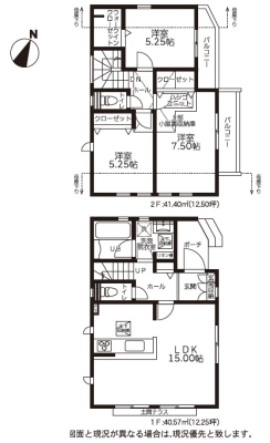
土地面積 | 70.71m² (21.38坪) | 建物面積 | 81.97u |
| 築年月 | 2026年8月築 | 間取り | 3LDK (LDK15/洋室5.25/洋室5.25/洋室7.5) | ||
| 交通 |
JR中央線 豊田 徒歩20分
京王線 南平 徒歩18分 |
||||
| 特徴 |
|
|---|---|
| セールスコメント | 住宅ローンのご案内もお任せ下さい。専属スタッフによりネット銀行等も含めた数ある金融機関の中からお客様にとってベストなプランをご提案いたします! |
| 採光面 | - | 構造/階数 | 木造/地上2階建 |
|---|---|---|---|
| 建ぺい率 | 60(%) | 容積率 | 200(%) |
| 駐車場 | 有 | 現況/引渡し | 建築中/相談 |
| 土地権利 | 所有権 | 私道負担面積 | なし |
| 接道状況 | 接道: 南 公道 道路幅: 4.1m 接道: 東 公道 道路幅: 4.1m |
用途地域 |
準住居地域
|
| セットバック | なし | 法令上の制限 | |
| 地目 | 宅地 | 地勢 | |
| 建築確認番号 | 都市計画 | 市街化区域 | |
| 取引態様 | 仲介 | ||
| 情報更新日 | 2026年05月11日 | 次回更新日 | 2026年05月25日 |
| 小学校区 | 日野市立豊田小学校 (東京都日野市) この学区の他の物件を見る |
中学校区 | 七生中学校 (東京都日野市) この学区の他の物件を見る |
|---|
| 価格 | 万円 | ||
|---|---|---|---|
| 年利率 | % |
||
| ボーナス払い | 返済年数 | ||
| 頭金 | 直接入力する | 万円 | |

毎月のご返済額 |
ボーナス(×年2回) |
物件価格3,780万円 |

















こちらの物件以外でも、他社さんで掲載中の他の物件は、すべて当店にてご紹介が可能です!お客様の気になる物件をまとめてご紹介させていただきますので、『〇〇〇の物件も見たい!』とお気軽にお申し付けください♪