お知らせ
INFO
【即入居可】八王子市東浅川町 新築戸建 ★高尾駅・狭間駅・ZEH水準・駐車2台・ミラブルシステム★ 東京都八王子市東浅川町|4,440万円の新築一戸建て|株式会社みんなのおうち
| 価格 | 4,440万円 ![]() |
||||
|---|---|---|---|---|---|
| 所在地 | 東京都八王子市東浅川町
この地域周辺の物件を見る |
土地面積 | 151.93m² (45.95坪) | 建物面積 | 109.3u |
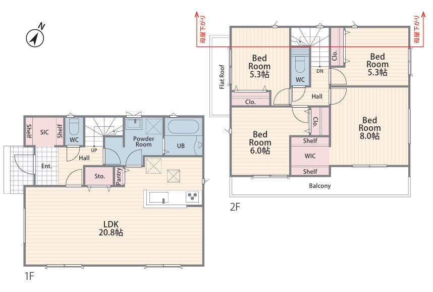
| 築年月 | 2025年11月築 | 間取り | 4LDK (LDK20.8/洋室5.3/洋室5.3/洋室6/洋室8) | ||
| 交通 |
JR中央線 高尾 徒歩18分
京王高尾線 狭間 徒歩15分 |
||||
| 特徴 |
|
|---|---|
| セールスコメント | 住宅ローンのご案内もお任せ下さい。専属スタッフによりネット銀行等も含めた数ある金融機関の中からお客様にとってベストなプランをご提案いたします! |
| 採光面 | - | 構造/階数 | 木造/地上2階建 |
|---|---|---|---|
| 建ぺい率 | 60(%) | 容積率 | 200(%) |
| 駐車場 | 有 | 現況/引渡し | 完成/相談 |
| 土地権利 | 所有権 | 私道負担面積 | なし |
| 接道状況 | 接道: 西 公道 道路幅: 5.5m | 用途地域 |
第一種住居地域
|
| セットバック | なし | 法令上の制限 | |
| 地目 | 宅地 | 地勢 | |
| 建築確認番号 | 都市計画 | 市街化区域 | |
| 取引態様 | 仲介 | ||
| 情報更新日 | 2026年04月25日 | 次回更新日 | 2026年05月09日 |
| 小学校区 | 八王子市立東浅川小学校 (東京都八王子市) この学区の他の物件を見る |
中学校区 | 陵南中学校 (東京都八王子市) この学区の他の物件を見る |
|---|
| 価格 | 万円 | ||
|---|---|---|---|
| 年利率 | % |
||
| ボーナス払い | 返済年数 | ||
| 頭金 | 直接入力する | 万円 | |

毎月のご返済額 |
ボーナス(×年2回) |
物件価格4,440万円 |
こちらの物件以外でも、他社さんで掲載中の他の物件は、すべて当店にてご紹介が可能です!お客様の気になる物件をまとめてご紹介させていただきますので、『〇〇〇の物件も見たい!』とお気軽にお申し付けください♪