お知らせ
INFO
【即入居可】八王子市鹿島 新築戸建全2棟 ★松が谷駅・ZEH水準・駐車2台・4LDK・食洗機★ 東京都八王子市鹿島|5,199万円の新築一戸建て|株式会社みんなのおうち
| 価格 | 5,199万円 ![]() |
||||
|---|---|---|---|---|---|
| 所在地 | 東京都八王子市鹿島
この地域周辺の物件を見る |
土地面積 | 116.87m² (35.35坪) | 建物面積 | 93.38u |
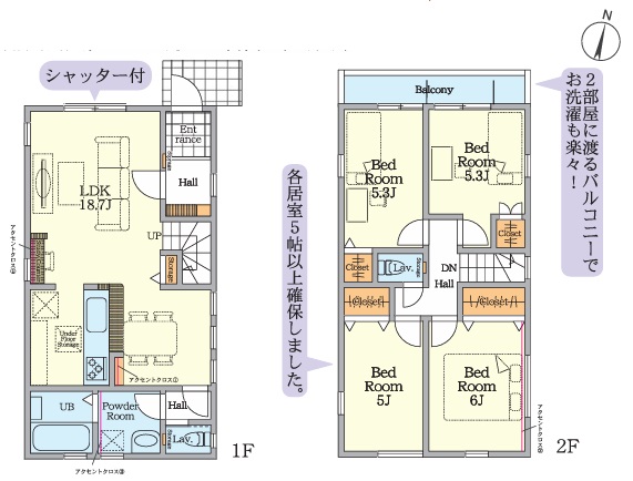
| 築年月 | 2026年4月築 | 間取り | 4LDK (LDK18.7/洋室5.3/洋室5.3/洋室4.5/洋室6.5) | ||
| 交通 |
多摩都市モノレール 松が谷 徒歩10分
小田急多摩線 小田急多摩センター 徒歩19分 |
||||
| 特徴 |
|
|---|---|
| セールスコメント | 住宅ローンのご案内もお任せ下さい。専属スタッフによりネット銀行等も含めた数ある金融機関の中からお客様にとってベストなプランをご提案いたします! |
| 採光面 | - | 構造/階数 | 木造/地上2階建 |
|---|---|---|---|
| 建ぺい率 | 40(%) | 容積率 | 80(%) |
| 駐車場 | 有 | 現況/引渡し | 建築中/相談 |
| 土地権利 | 所有権 | 私道負担面積 | なし |
| 接道状況 | 接道: 北 公道 道路幅: 6m | 用途地域 |
第一種低層住居専用地域
|
| セットバック | なし | 法令上の制限 | |
| 地目 | 宅地 | 地勢 | |
| 建築確認番号 | 都市計画 | 市街化区域 | |
| 取引態様 | 仲介 | ||
| 情報更新日 | 2026年05月11日 | 次回更新日 | 2026年05月25日 |
| 小学校区 | 八王子市立鹿島小学校 (東京都八王子市) この学区の他の物件を見る |
中学校区 | 松が谷中学校 (東京都八王子市) この学区の他の物件を見る |
|---|
| 価格 | 万円 | ||
|---|---|---|---|
| 年利率 | % |
||
| ボーナス払い | 返済年数 | ||
| 頭金 | 直接入力する | 万円 | |

毎月のご返済額 |
ボーナス(×年2回) |
物件価格5,199万円 |
こちらの物件以外でも、他社さんで掲載中の他の物件は、すべて当店にてご紹介が可能です!お客様の気になる物件をまとめてご紹介させていただきますので、『〇〇〇の物件も見たい!』とお気軽にお申し付けください♪