お知らせ
INFO
八王子市 元八王子町第46 新築分譲住宅 全4棟 ★JR中央線『高尾』駅・4LDK〜3LDK・カウンターキッチン・収納充実・スーパー、コンビニ徒歩圏内・太陽光発電・駐車2台可能★ 東京都八王子市元八王子町2丁目|2880万〜3180万円 ※2号棟、3号棟 終了の新築一戸建て|株式会社みんなのおうち
| 価格 | 2880万〜3180万円 ※2号棟、3号棟 終了 ![]() |
||||
|---|---|---|---|---|---|
| 所在地 | 東京都八王子市元八王子町2丁目
この地域周辺の物件を見る |
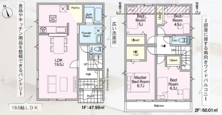
土地面積 | 130.45m² (39.46坪) | 建物面積 | 95.58u |
| 築年月 | 2025年12月築 | 間取り | 3LDK (-) | ||
| 交通 |
JR中央線 高尾 バス8分 出羽橋 停歩4分
|
||||
| 特徴 |
|
|---|---|
| セールスコメント | 物件のメリット・デメリットから、最適な住宅ローンのご案内まで、不動産のプロが丁寧にご説明いたします♪ |
| 採光面 | - | 構造/階数 | 木造/-階建 |
|---|---|---|---|
| 建ぺい率 | 40(%) | 容積率 | 80(%) |
| 駐車場 | 有 | 現況/引渡し | 新築/相談 |
| 土地権利 | 所有権 | 私道負担面積 | - |
| 接道状況 | 接道: 北西 公道 道路幅: 2.7m 接道: 南 道路幅: 4m |
用途地域 |
第一種低層住居専用地域
|
| セットバック | なし | 法令上の制限 | |
| 地目 | 宅地 | 地勢 | |
| 建築確認番号 | 都市計画 | 市街化区域 | |
| 取引態様 | 仲介 | ||
| 情報更新日 | 2026年05月22日 | 次回更新日 | 2026年06月05日 |
| 小学校区 | 八王子市立城山小学校 (東京都八王子市) この学区の他の物件を見る |
中学校区 | 城山中学校 (東京都八王子市) この学区の他の物件を見る |
|---|
| 価格 | 万円 | ||
|---|---|---|---|
| 年利率 | % |
||
| ボーナス払い | 返済年数 | ||
| 頭金 | 直接入力する | 万円 | |

毎月のご返済額 |
ボーナス(×年2回) |
物件価格2880万〜3180万円 ※2号棟、3号棟 終了 |
こちらの物件以外でも、他社さんで掲載中の他の物件は、すべて当店にてご紹介が可能です!お客様の気になる物件をまとめてご紹介させていただきますので、『〇〇〇の物件も見たい!』とお気軽にお申し付けください♪