【即入居可】八王子市 富士見町 新築分譲住宅 全2棟 2号棟 ★京王線『京王八王子』駅・4LKDK・カウンターキッチン・ZEH水準住宅・スーパー徒歩圏内・駐車2台可能・都市ガス★ 東京都八王子市富士見町|4,299万円の新築一戸建て|株式会社みんなのおうち

豊田駅前店

電話アイコン

042-843-1655

南大沢店

電話アイコン

042-689-5122

日野市、八王子市の総合不動産|ピタットハウス豊田駅前店・南大沢店 >
物件検索 >
新築一戸建て
>
八王子市
>
京王線
>
【即入居可】八王子市 富士見町 新築分譲住宅 全2棟 2号棟 ★京王線『京王八王子』駅・4LKDK・カウンターキッチン・ZEH水準住宅・スーパー徒歩圏内・駐車2台可能・都市ガス★

新築一戸建て

【即入居可】八王子市 富士見町 新築分譲住宅 全2棟 2号棟 ★京王線『京王八王子』駅・4LKDK・カウンターキッチン・ZEH水準住宅・スーパー徒歩圏内・駐車2台可能・都市ガス★

お気に入り
価格 4,299万円 ローンシミュレーション
所在地 東京都八王子市富士見町
この地域周辺の物件を見る
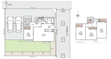
土地面積 132.88m² (40.19坪) 建物面積 105.74u
築年月 2026年1月築 間取り 4LDK (LDK24.6/洋室5.3/洋室5.1/洋室3/洋室8)
交通
京王線 京王八王子 徒歩20分/大和田
JR八高線 北八王子 徒歩15分
ここがおすすめ

こちらの物件以外でも、他社さんで掲載中の他の物件は、すべて当店にてご紹介が可能です!お客様の気になる物件をまとめてご紹介させていただきますので、『〇〇〇の物件も見たい!』とお気軽にお申し付けください♪

お問い合わせ、資料請求、見学のお申し込みはこちらから

電話をかける(携帯・PHS可)
042-843-1655
「ホームページを見た」とお伝え下さい。

お問い合わせ番号をお伝えください
RHS-20260118-1604

内見予約
お問合せ

セールスポイント

特徴
  • フローリング
  • 給湯器
  • システムキッチン
  • カウンターキッチン
  • シャンプードレッサー
  • 追い焚き
  • シャワー
  • バス・トイレ別
  • シャワートイレ
  • 食洗機
  • 浴室乾燥機
  • コンロ三口
  • Wクローゼット
  • 床下収納
  • バルコニー
  • TVドアホン
  • カースペース2台
  • 本下水
  • 都市ガス
  • カースペース2台以上
セールスコメント 物件のメリット・デメリットから、最適な住宅ローンのご案内まで、不動産のプロが丁寧にご説明いたします♪

物件概要

採光面 - 構造/階数 木造/地上2階建
建ぺい率 50(%) 容積率 100(%)
駐車場 現況/引渡し 新築/相談
土地権利 所有権 私道負担面積 なし

接道状況 接道: 西 公道 道路幅: 4m 用途地域
第一種低層住居専用地域
セットバック なし 法令上の制限
地目 宅地 地勢
建築確認番号 都市計画 市街化区域
取引態様 仲介
情報更新日 2026年03月29日 次回更新日 2026年04月12日
※各種情報と差異がある場合は現況優先となります

学区情報

小学校区 八王子市立第十小学校
(東京都八王子市)
この学区の他の物件を見る
中学校区 ひよどり山中学校
(東京都八王子市)
この学区の他の物件を見る
※物件情報の学区情報について
当サイト物件情報に記載されております通学区域(学区)情報は、国土数値情報ダウンロードサービスが提供する小学校区データ【2021年度】及び中学校区データ【2021年度】を元に加工したものですので、記載情報が現在の学区域と異なる場合がございます。
国土数値情報ダウンロードサービスのWEBサイト上で記述通り、データは必ずしも正確とは言えません。また、通学区域(学区)は毎年見直しの対象となりますので、そちらを踏まえ学区情報は参考としてご活用下さい。

お問い合わせ、資料請求、見学のお申し込みはこちらから

電話をかける(携帯・PHS可)
042-843-1655
「ホームページを見た」とお伝え下さい。

お問い合わせ番号をお伝えください
RHS-20260118-1604

内見予約
お問合せ

この物件でローンシミュレーションする

価格 万円
年利率
ボーナス払い 返済年数
頭金 直接入力する 万円

毎月のご返済額

ボーナス(×年2回)

物件価格

4,299万円
※返済金額はあくまでも目安です。
  • こちらの物件を見たお客様はこんな物件もチェックしています。
  • お気に入り物件

同じ価格帯の物件はこちら

広さの近い物件はこちら

同じ学区の物件はこちら

電話をかける(携帯・PHS可)
042-843-1655
「ホームページを見た」とお伝え下さい。

お問い合わせ番号をお伝えください
RHS-20260118-1604

内見予約
お問合せ

お問い合わせ

  1. 1
    内容入力
  2. 2
    内容確認
  3. 3
    完了
お問合せ内容必須
【備考欄】
詳細な見学ご希望時間、ご質問、ご希望条件などがございましたらお聞かせ下さい。
(2000文字以内)
お名前必須
メールアドレス必須
※ご記入いただいたメールアドレス宛てに、お問合せ内容の確認メールをお送りいたします。
※Yahoo!メールなどのフリーメールをご利用の場合、迷惑メールフォルダに入る場合があります。
 迷惑メールのフォルダ・設定等をご確認下さい。
電話番号必須
FAX(任意)
※ご入力いただいたお客さまの個人情報は、「個人情報の取扱いについて」に基づき適正に取り扱います。必ずお読みになり、同意の上お問い合わせください。

お気軽にお問い合わせください

042-843-1655
物件番号 RHS-20260118-1604
※「ホームページを見た」
とお伝え下さい。

売買について

日野市・八王子市を中心に物件を検索不動産売却や住み替えのご相談もできます。

家を購入したい

家のイラスト

家を売却したい

案内人のイラスト

賃貸について

日野・八王子のお部屋探しならお任せください。賃貸管理のご相談も承っています。

部屋を借りたい

家のイラスト

部屋を貸したい

鍵のイラスト

売却について

SALE

接客中の様子の写真

住み替え・相続・離婚・空き家など、どのような売却のご内容でもご対応致します

弊社のスタッフが、長年培ってきた経験と知識で、
お客様一人一人に合わせた売却
方法をご提案
させて頂きます。

売却について

オーナー様へ

OWNER

接客中の様子の写真

入居募集・家賃回収・退去・
管理の全てをサポート
させて頂きます!

お客様それぞれのご要望に合わせたプランをご用意しておりますので、まずはお気軽にご相談下さい。

もっと見る

店舗のご紹介

SHOP

豊田駅前店

豊田駅前店の外観写真

〒191-0062
東京都日野市多摩平2-2-1

TEL.042-843-1655
営業時間:10:00〜19:00
定休日:年末年始

アクセス

南大沢店

南大沢店の外観写真

〒192-0364
東京都八王子市南大沢2-1-6
フレンテ南大沢新館3F

TEL.042-689-5122
営業時間:10:00〜19:00
定休日:水曜日

アクセス