お知らせ
INFO
八王子市 泉町 第26 新築分譲住宅 全12棟+土地8区画 ★JR中央線『西八王子』駅・3LDK〜4LDK・カウンターキッチン・小学校、中学校、スーパー、ドラッグストアが徒歩圏内★ 東京都八王子市泉町|2680万円〜3380万円 ※14号棟 終了の新築一戸建て|株式会社みんなのおうち
| 価格 | 2680万円〜3380万円 ※14号棟 終了 ![]() |
||||
|---|---|---|---|---|---|
| 所在地 | 東京都八王子市泉町
この地域周辺の物件を見る |
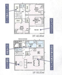
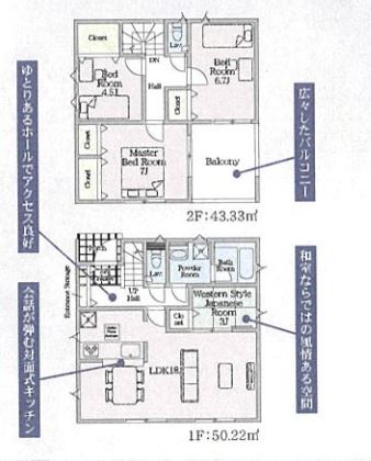
土地面積 | 140.02m² (42.35坪) | 建物面積 | 89.1u |
| 築年月 | 2026年4月築 | 間取り | 3LDK (-) | ||
| 交通 |
JR中央線 西八王子 バス18分 四谷並木橋 停歩2分
JR中央線 八王子 徒歩76分/バス23分 四谷北 停歩5分 |
||||
| 特徴 |
|
|---|---|
| セールスコメント | 物件のメリット・デメリットから、最適な住宅ローンのご案内まで、不動産のプロが丁寧にご説明いたします♪ |
| 採光面 | - | 構造/階数 | 木造/地上2階建 |
|---|---|---|---|
| 建ぺい率 | 40(%) | 容積率 | 80(%) |
| 駐車場 | 有 | 現況/引渡し | 未完成/相談 |
| 土地権利 | - | 私道負担面積 | あり 631m² 持分:1/20 |
| 接道状況 | 接道: 私道 道路幅: 5m 接道: 西 公道 道路幅: 6.5m |
用途地域 |
第一種低層住居専用地域
|
| セットバック | なし | 法令上の制限 | |
| 地目 | 宅地 | 地勢 | |
| 建築確認番号 | 都市計画 | 市街化区域 | |
| 取引態様 | 仲介 | ||
| 情報更新日 | 2026年05月26日 | 次回更新日 | 2026年06月09日 |
| 小学校区 | 八王子市立元八王子東小学校 (東京都八王子市) この学区の他の物件を見る |
中学校区 | 四谷中学校 (東京都八王子市) この学区の他の物件を見る |
|---|
| 価格 | 万円 | ||
|---|---|---|---|
| 年利率 | % |
||
| ボーナス払い | 返済年数 | ||
| 頭金 | 直接入力する | 万円 | |

毎月のご返済額 |
ボーナス(×年2回) |
物件価格2680万円〜3380万円 ※14号棟 終了 |
こちらの物件以外でも、他社さんで掲載中の他の物件は、すべて当店にてご紹介が可能です!お客様の気になる物件をまとめてご紹介させていただきますので、『〇〇〇の物件も見たい!』とお気軽にお申し付けください♪