お知らせ
INFO
八王子市 長沼町 リノベーション済み中古住宅 ★京王線『平山城址公園』駅・6SLDK・水回りリフォーム済み・軽量鉄骨造・広いお庭付き・都市ガス★ 東京都八王子市長沼町|3,950万円の中古一戸建て|株式会社みんなのおうち
| 価格 | 3,950万円 ![]() |
||||
|---|---|---|---|---|---|
| 所在地 | 東京都八王子市長沼町
この地域周辺の物件を見る |
土地面積 | 191.4m² (57.89坪) | 建物面積 | 136.36u |
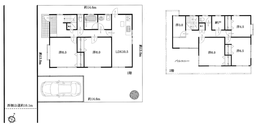
| 築年月 | 1982年12月築 | 間取り | 6SLDK (LDK10.5/洋室8/洋室8/洋室3/洋室8/洋室4.5/洋室6.5/S) | ||
| 交通 |
京王線 平山城址公園 徒歩10分
京王線 長沼 徒歩13分 |
||||
| 特徴 |
|
|---|---|
| セールスコメント | 物件のメリット・デメリットから、最適な住宅ローンのご案内まで、不動産のプロが丁寧にご説明いたします♪ |
| 採光面 | - | 構造/階数 | 軽量鉄骨造/地上2階建 |
|---|---|---|---|
| 建ぺい率 | 40(%) | 容積率 | 80(%) |
| 駐車場 | 有 | 現況/引渡し | 空家/相談 |
| 土地権利 | 所有権 | 私道負担面積 | なし |
| 接道状況 | 接道: 西 公道 道路幅: 10m | 用途地域 |
第一種低層住居専用地域
|
| セットバック | なし | 法令上の制限 | |
| 地目 | 宅地 | 地勢 | |
| 建築確認番号 | 都市計画 | 市街化区域 | |
| 取引態様 | 仲介 | ||
| 情報更新日 | 2026年04月27日 | 次回更新日 | 2026年05月11日 |
| 小学校区 | 八王子市立長沼小学校 (東京都八王子市) この学区の他の物件を見る |
中学校区 | 打越中学校 (東京都八王子市) この学区の他の物件を見る |
|---|
| 価格 | 万円 | ||
|---|---|---|---|
| 年利率 | % |
||
| ボーナス払い | 返済年数 | ||
| 頭金 | 直接入力する | 万円 | |

毎月のご返済額 |
ボーナス(×年2回) |
物件価格3,950万円 |
こちらの物件以外でも、他社さんで掲載中の他の物件は、すべて当店にてご紹介が可能です!お客様の気になる物件をまとめてご紹介させていただきますので、『〇〇〇の物件も見たい!』とお気軽にお申し付けください♪